147 Arbour Lake Court Nw, Calgary, Alberta T3G 2L4

Browse our exclusive listings.

$593,248.95

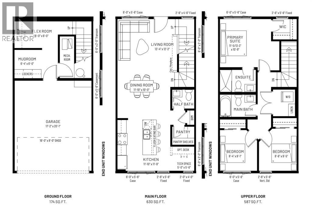
Step into a new chapter of life with the Metro Tailored Tiered 18, a canvas for your dreams and aspirations. Whether you're embarking on a career, venturing into homeownership, or seeking to right-size, this townhome offers affordability and flexibility, opening doors to endless possibilities. Experience the true essence of homeownership with three floors of living space, oversized windows, beautiful finishes and an awesome location this townhome sets the stage for your next chapter. Indulge in the thoughtful features, from the spacious patio and expansive kitchen island to the versatile corner flex area and convenient upper floor laundry facilities. With three bedrooms, ample storage space, and a double car garage, this townhome is designed to meet the needs of modern living while allowing you to create your masterpiece. Located in one of Calgary’s Best neighbourhoods Arbour Lake has is it all! A pristine lake brimming with rainbow trout, neighbourhood parks, spectacular mountain views, a regional bike and walkway path carved through rolling hills. Swimming, boating, fishing, ice skating, community events and much more. Your activities are only limited by your imagination. As Northwest Calgary’s only lake community, Arbour Lake offers a quality of living that is truly unparalleled. Photos are representative of the property being built. (id:55577)

Property Features

  • MLS® Number A2261665
  • Price $593,248.95

    Maintenance, Common Area Maintenance, Insurance, Property Management, Reserve Fund Contributions, Waste Removal

    $229.16 Monthly
  • Bedrooms: 3
  • Bathrooms: 3
  • Square Footage: 1260 sqft
  • Property Type: Row / Townhouse
  • Community Name: Arbour Lake
  • Amenities Near By Park, Playground, Recreation Nearby, Schools, Shopping, Water Nearby
  • Community Features Lake Privileges, Pets Allowed
  • Features See Remarks, Parking
  • Parking Space Total 2
  • Plan 2110513

Buildings

Bathroom Total 3 Bedrooms Above Ground 3
Bedrooms Total 3 Appliances Refrigerator, Dishwasher, Stove, Microwave Range Hood Combo
Basement Type None Constructed Date 2025
Construction Material Wood Frame Construction Style Attachment Attached
Cooling Type See Remarks Flooring Type Carpeted, Vinyl Plank
Foundation Type Poured Concrete Half Bath Total 1
Heating Type Forced Air Stories Total 3
Size Interior 1260 Sqft Total Finished Area 1260 Sqft
Type Row / Townhouse

Parking

Attached Garage 2

Land

Acreage No Fence Type Not Fenced
Land Amenities Park, Playground, Recreation Nearby, Schools, Shopping, Water Nearby Size Total Text Unknown
Zoning Description Tbd

Rooms

Level Type Dimensions
Lower Level Den 9.00 Ft x 6.00 Ft
Main Level 2pc Bathroom .00 Ft x .00 Ft
Main Level Other 5.00 Ft x 5.50 Ft
Main Level Kitchen 11.83 Ft x 11.75 Ft
Main Level Dining Room 11.83 Ft x 10.00 Ft
Main Level Living Room 13.33 Ft x 12.17 Ft
Upper Level Bedroom 8.33 Ft x 9.08 Ft
Upper Level Bedroom 8.50 Ft x 9.42 Ft
Upper Level 4pc Bathroom .00 Ft x .00 Ft
Upper Level 3pc Bathroom .00 Ft x .00 Ft
Upper Level Primary Bedroom 11.42 Ft x 13.25 Ft

Agents and Offices

  • Jamie Ostby
  • Jennifer McIntosh
  • Office: Kic Realty

Do you have questions?

Call or text today, we are here to help!

+1 403-483-3300