1505 15 Avenue Sw, Calgary, Alberta T3C 0Y1

Browse our exclusive listings.

$105,000

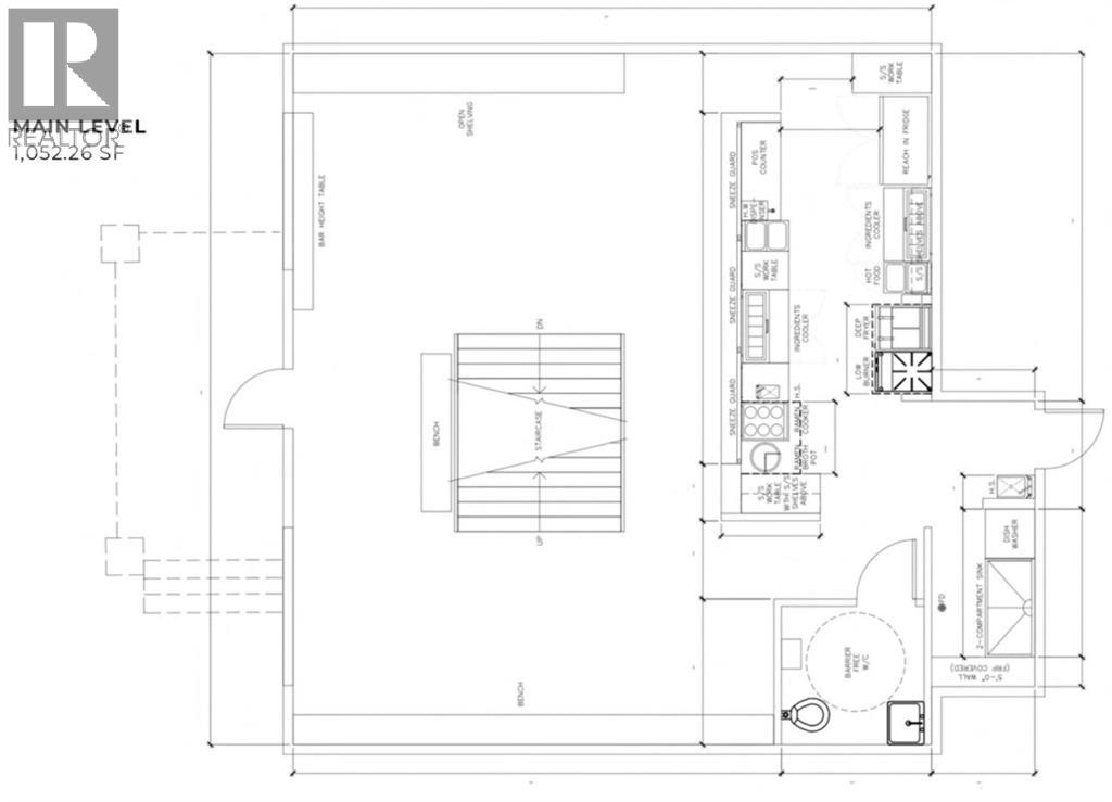
This is an excellent opportunity to acquire a restaurant located in a free-standing building in a prime location, offering strong visibility and easy customer access. The lease runs until February 28, 2031, with a competitive basic rent plus operating costs of $5,000 per month. The space can be converted to other cuisine concepts (please note Japanese cuisine and fried chicken concepts are not permitted). With its standalone presence, favorable lease terms, and flexible use options, this restaurant is well suited for operators seeking strong value in a high-demand area. Size 1,267sf + additional 1,000sf basement. (id:55577)

Property Features

  • MLS® Number A2279684
  • Price $105,000
  • Square Footage: 1267 sqft
  • Community Name: Sunalta

Business

Business Type Restaurant, Restaurant Business Sub Type Fast foods, Restaurant

Buildings

Constructed Date 2000 Size Exterior 1267 Sqft
Size Interior 1267 Sqft Total Finished Area 1267 Sqft

Land

Acreage No Size Total Text Unknown

Agents and Offices

  • Phil Yan
  • Office: Grand Realty

Do you have questions?

Call or text today, we are here to help!

+1 403-483-3300